SB-535采暖系統模擬演示裝置
一、熱水供暖系統模擬實驗目的:
通過運行熱水采暖系統來掌握采暖系統中各元件的作用及連接方式,從而鞏固學生在課堂所學習的知識。
熱水供暖系統模擬實驗設備主要配置:
模擬采暖散熱器片、采暖供水干支管道、回水干支管道、集氣罐、高位膨脹水箱、溢水管、信號管、循環管、排水管、膨脹管、模擬房間墻面、模擬供暖鍋爐、供水泵、供水箱、實驗臺框架等。

二、采暖系統模擬演示裝置技術參數:
1、輸入電源:單相AC220V±10% 50Hz,功率370W。
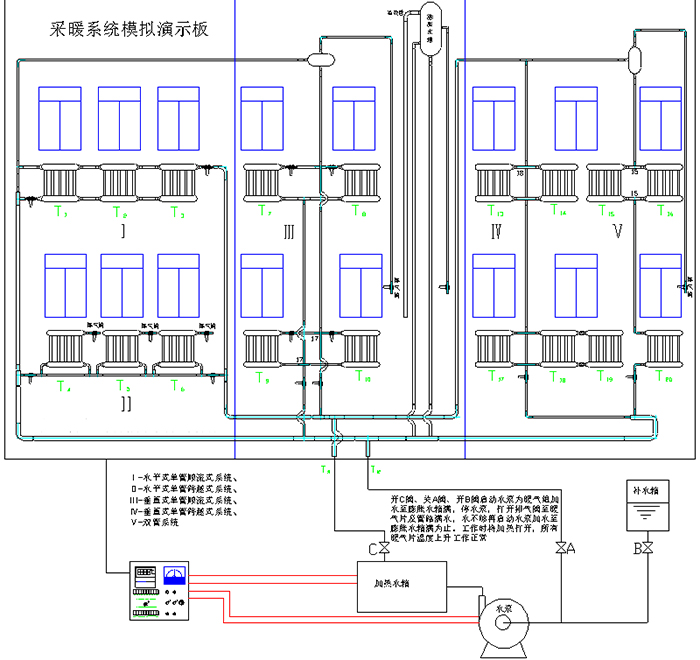
2、18個玻璃暖氣包,5種采暖方式模擬多種形式熱水采暖系統工作過程及其連接方式。
3、循環水泵參數: 流量:20L/min ,揚程:12m,功率:100W。
4、模擬供暖鍋爐 ;給水箱;集氣罐;高位膨脹水箱;模擬房間墻面;散熱器;模擬采暖散熱器片、采暖供
水干支管道、回水干支管道、水平式單管順流式系統;水平式單管跨越式系統;垂直式單管順流式系統;
垂直式單管跨越式系統;雙管系統。
5、20點測溫顯示系統:由高精度溫度傳感器測量,萬能信號輸入巡檢儀配合高精度數字顯示表。
6、外形尺寸:3200×400×2200mm,外形為不銹鋼框架(掛壁式)。
采暖系統模擬演示裝置使用說明書
一、 實驗目的
1、了解常見的采暖系統形式,掌握系統中各部件的作用及其連接方式,鞏固課堂學習的知識。
2、了解熱水在系統及散熱器中的流動情況和規律。
3、了解空氣在系統中存在的情況,認識排除系統中空氣的重要性及其排氣措施。
二、 演示裝置

1—鍋爐 2—循環水泵 3—給水箱 4—集氣罐 5—膨脹水箱 6—模擬窗
7—散熱器 8—20點測溫總線 9—控制柜
Ⅰ—水平式單管順流式系統 Ⅱ—水平式單管跨越式系統
Ⅲ—垂直式單管順流式系統 Ⅳ—垂直式單管跨越式系統
Ⅴ—雙管系統
三、 演示內容及過程
1、系統充水與排氣
系統工作前,先將水充滿給水箱3,然后打開閥門B和C,同時啟動水泵2,向系統充水。充水時,不斷地開閉集氣罐放氣閥,讓系統的空氣從集氣罐4和膨脹水箱5中排出,待充水到一定程度,當集氣罐溢流管有水流出時,關閉集氣罐溢流閥門,水位繼續上升,當自來水從膨脹水箱溢流管流出時,停止充水。若水位下降,就再次充水,直到水位在溢流管處為止。
當水位有所下降時,應分析其原因:
1)系統內可能仍有空氣存在;
2)系統、設備、管道及閥門是否有漏水現象;
演示中,應觀察:
① 在充水過程中,對于上供下回及下供上回式系統是怎樣排氣的?
② 如不排除系統中所存在的空氣,對系統的正常運行有何影響?
2、自然循環演示
開啟電熱鍋爐,在系統充水后,電熱鍋爐投入工作(應打開回水管上的閥門),這時,水泵不工作。
演示時,應注意觀察:
(1)水中空氣從溶解狀態變成游離狀態,氣泡的聚集及浮升的過程和現象。并理解排氣的重要性。
(2)觀察水在系統中的循環狀態,加深對重力壓頭的理解。
(3)膨脹水箱及各部管道的作用。
[注] 自然循環現象不明顯,不易清楚的觀察到。
3、機械循環演示
系統充滿水后,啟動鍋爐,加熱系統中的水,然后關閉閥門B,打開閥門A,熱水在水泵的作用下,沿供水干管進入散熱器,并通過散熱器將熱量放散到采暖房間。溫度降低了的水從散熱器流出,沿回水干道進入水泵加壓,流回鍋爐再加熱。
演示中,應觀察
(1) 機械循環與自然循環相比,水在系統中的流動狀態有什么異同?
(2) 帶跨越管的單立管中,熱水流量的分配情況如何?
4、停止演示運行
(1) 先關閉電加熱器的電器開關。
(2) 關閉水泵的電開關。
(3) 打開泄水閥門,使水從系統中排掉。
四、 思考題:
1、膨脹水箱的底為什么要比排氣設備的底部要高?水被加熱后,膨脹水箱有什么變化?為什么?
2、膨脹水箱有幾根連接管,各起什么作用?每根連接管上是否都可以裝閥門?
3、在帶有跨越管的單管立管中是什么原因會使立管的流量一部分通過散熱器?
4、本演示中,室內熱水采暖系統有幾種連接方式,畫出各種連接方式的原理圖并簡述其特點。
5、簡述本演示系統有哪幾種方式排除空氣,并畫出其簡圖。
6、熱水采暖系統投入運行后,何時要排氣?